DEUTSCHES DOKUMENTATIONSZENTRUM FÜR KUNSTGESCHICHTE
Fertigstellung
Der Neubau des Deutschen Dokumentationszentrum für Kunstgeschichte entstand nach einem 2016 gewonnenen Wettbewerbsbeitrag, der auch den Entwurf für das benachbarte Seminargebäude am Pilgrimstein der Philipps-Universität Marburg umfasst. Das Ensemble aus dem Seminargebäude, dem DDK und dem bestehenden Forschungszentrum Deutscher Sprachatlas vervollständigt die städtebauliche Setzung zwischen der Altstadt Marburg und dem denkmalgeschützten alten Botanischen Garten. Vorangegangen war ein städtebaulicher Wettbewerb von 2008, bei dem das Planungsbüro Bär Stadelmann Stöcker als Gewinner hervorging und gemeinsam mit der Stadt Marburg die Baulinien sowie die max. Gebäudehöhe definierte.
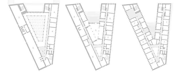
Das Bildarchiv füllt ein trapezförmiges Grundstück, begrenzt vom Pilgrimstein, dem Deutschen Sprachatlas und dem Seminargebäude. Aufgrund der schwierigen Grundstücksform und der Nähe zum Seminargebäude beschreibt das Bauwerk eine V-Form, dessen Innenhofe sich zum Seminargebäude hin abtreppt. An der schmalen Vorderseite entstand ein Vorplatz der zur Marburger Altstadt hingewandt ist, hier befindet sich der Haupteingang.
Die Ziegelfassade ist im Kontrast zum Seminargebäude mit einer weißen Kalkanstrich beschichtet worden. Die vertikalen Fenster folgen dem 1,25m Raster wobei auch aufgrund der Archivflächen im Inneren große Fassadenflächen ohne Öffnungen einfach als Wand erlebbar sind. Es gibt drei leichte Einschnitte in der Kubatur: eine betont den Eingang, eine nimmt die Traufhöhe des gegenüberliegenden Sprachatlas auf und eine weitere schafft die Anbindung and das benachbarte Seminargebäude.
Im Gebäudeinneren sind Raumspangen um zwei in der Höhe versetzte Hallen angeordnet: eine zweigeschossige Halle im EG dient dem darinstehenden Seminarraum als umlaufendes Foyer, ein weiterer vertikaler Raum verbindet die Bürogeschosse über einen Lichthof. Daran angegliedert ist eine Bibliothek und ein Besprechungsraum. Aufgrund der gestaffelten Terrassen gibt es einen Zugang zu den Terrassen von mehreren Geschossen, dem Saal, der Bibliothek und dem Besprechungsraum.
In den Raumspangen befindet sich Büros und Fotowerkstätten sowie in der straßenzugewandten Seite die Bildarchive. Das Archiv ist geteilt in kleinere Raumabschnitte, um eine mögliche Brandausbreitung zu beschränken und die Temperatur- und Luftfeuchtigkeitskonstante zu gewährleisten. Andere Bereiche sind flexible in Nutzungseinheiten geteilt um auf einen notwendigen Flur verzichten zu können.












